De Vlas   Exterieur
Twee-onder-een-kapwoningen
De Vlas

De twee-onder-een-kapwoningen in De Biezenweie bieden volop ruimte, comfort en vrijheid. Met een woonoppervlakte van circa 133 m², drie slaapkamers en een ruime tuin is dit een ideale gezinswoning – klaar voor nu én de toekomst.

De tuinen liggen op het westen of noorden, afhankelijk van het bouwnummer, en bieden altijd een fijne plek om buiten te zijn. Binnen zorgen de royale woonkamer, open keuken en praktische indeling voor een prettige leefomgeving, met veel licht en leefruimte. Of je nu een jong gezin bent of gewoon ruim wilt wonen: deze woningen combineren dorps wonen met hedendaags comfort.

Bouwnummers

C3 t/m C6, C8 en C9

Woonoppervlakte

Ca. 133 m2

Slaapkamers

3

Tuinligging

Westen - bouwnummers C8 en C9
Noorden - bouwnummers C3 t/m C6

Begane grond
1e verdieping
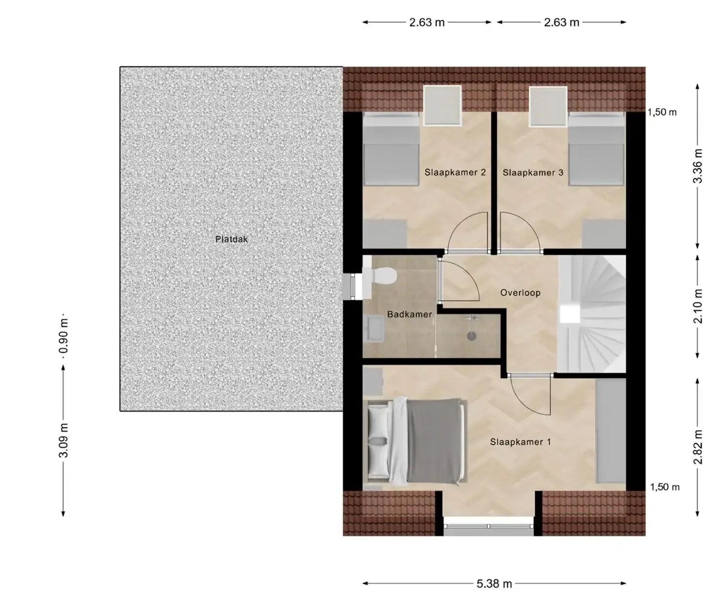
2e verdieping

Bouwnummers C3, C5 en C8 
Bouwnummer C4, C6 en C9 zijn gespiegeld

Bouwnummers C3, C5 en C8 
Bouwnummer C4, C6 en C9 zijn gespiegeld

Bouwnummers C3, C5 en C8 
Bouwnummer C4, C6 en C9 zijn gespiegeld