De Dotter    Exterieurv2
Vrijstaande woningen
De Dotter

De vrijstaande woningen in De Biezenweie bieden maximale ruimte en privacy. Met een woonoppervlakte van circa 158 m², drie slaapkamers en een ruime tuin op het noorden is dit een woning met mogelijkheden – voor wie nét wat meer zoekt.

De royale leefruimte beneden, de lichte kamers boven en de vrije ligging maken dit tot een plek waar je echt je eigen thuis kunt creëren. Of je nu houdt van rust, ruimte of gewoon graag buiten leeft: hier kan het allemaal. Een woning met allure, midden in een dorpse en groene omgeving.

Bouwnummers

C1, C2 en C7

Woonoppervlakte

Ca. 158 m2

Slaapkamers

3

Tuinligging

Noorden

Begane grond
1e verdieping
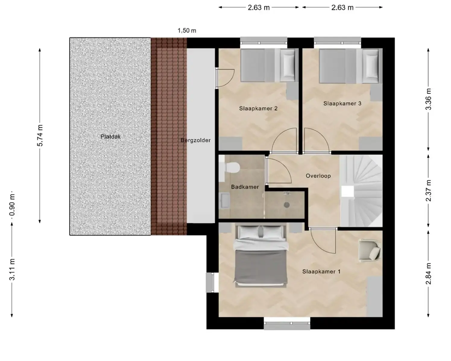
2e verdieping

Bouwnummer C7
Bouwnummer C1 en C2 zijn gespiegeld

Bouwnummer C7
Bouwnummer C1 en C2 zijn gespiegeld

Bouwnummer C7
Bouwnummer C1 en C2 zijn gespiegeld